울산 태화강 아이파크 잔여세대 선착순 분양

울산 태화강 아이파크 잔여세대 선착순 분양
울산 태화강 아이파크 잔여세대에 대한 선착순 분양정보입니다. 보다 자세한 정보는 아래에서 확인하세요.
<줍줍>이라는 말 들어 보셨죠?
게임에서 나온 용어로 '줍고 줍는다'를 줄여서 표현하는 뜻으로, 근래에는 부동산에 접목시켜 청약에 떨어지거나 무순위 청약을 통해 미분양이나 잔여세대 물건을 사 들이는 것을 말합니다. 울산 태화강 아이파크 단지가 줍줍을 통해 분양이 진행되고 있습니다. 줍줍 단지에 대해서 궁금하신 분들은 아래를 참고하세요.
울산 태화강 아이파크 개요
울산광역시 중구 성남동 196-21번지, 건축 규모는 지상 36층 2개동 총 377실 규모
타입은 전용면적 31㎡ 58실 외에 전체의 약 85%인 319실이 59㎡로
대부분 주거용 오피스텔이라 할 수 있습니다.

HDC현대산업개발이 울산시 중구에서 공급한 '울산 태화강 아이파크'에 투자자들이 몰리며, 잔여 호실 물량이 빠르게 소진되고 있다. 태화강 영구 조망권 입지에 주변으로 배후수요가 풍부하고, 개발호재도 잇따르고 있어 높은 프리미엄을 기대할 수 있기 때문이다.

청약 결과 리뷰
청약에서도 높은 청약 경쟁률을 보이며 인기를 한차례 입증한 바 있다.
'울산 태화강 아이파크'는 지난달 30일 진행한 청약에서
377실 모집에 1만1971건이 접수돼
평균 31.75대 1
최고 40.08대 1의 경쟁률을 기록했다.

울산 태화강 조망권을 갖춘 단지 최근 시세
최근 1년간 시세가 억단위로 올랐다. 국토교통부 실거래가 자료에 따르면,

울산 남구 무거동에 위치해 태화강 조망권을 갖춘 '무거위브자이'는 전용면적 119.374㎡가 지난해 6월 5억3500만원(22층)에서 이달 7억4300만원(19층)에 거래돼 1년만에 시세가 2억원 이상 상승했다. 다른 지역의 따근한 신규 분양 단지는 아래에서 확인하세요. 프리미엄 상당할 것으로 기대되는 분양아파트 목록입니다.
인기있는 이유

울산 태화강변에 들어서는 '울산 태화강 아이파크' 역시도 높은 프리미엄이 예상되며, 정남향 단지배치·영구 조망권·브랜드 등을 갖춰 향후 울산을 대표하는 명품단지

청약 일정은 아래와 같았어요.

청약 자격 또한 통장 필요없이,
만 19세 이상이면 누구나 청약이 가능했습니다.
앞서 언급한 청약 경쟁률에 비하면
마감이 안 된것이 신기할 정도인데요.


울산 태화강 아이파크 분양가


이 글을 보시는 분들중에도 청약 하신분이 계실 텐데요.
지난 6월 30일 <청약홈>을 통해 31제곱미터 / 59제곱미터 2군과 3군에 청약 접수.
평균 경쟁율이 31.75 대 1의 높은 경쟁율
당첨이 안된 분들이 많습니다.
줍줍으로 또 한번의 기회가 있으니
제대로 알아보고 선택하세요.
요즘 핫한 다른 분양단지 검색은
아래에서 확인해보세요.
청약일정

당첨자 계약 일정

울산 태화강 아이파크 경쟁률


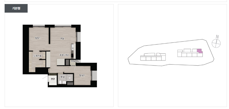
평면도 안내

59㎡C 타입 역시 양면 개방형 구조로 공급면적 29.4평입니다.

단지는 지하 4층~지상 36층, 2개 동, 전용면적 31~59㎡ 총 377실 규모로 구성되며, 지하 4층~지상 5층은 주차장, 지상 1층~3층은 상업시설, 지상 6층은 커뮤니티 시설, 지상 7~36층은 아파텔이 들어선다.
단지가 1인 가구를 위한 원룸형 구조와 2~3인 가구를 위한 아파텔 구조로 이루어진다.

59㎡B 타입은 양면 개방형이며 공급 면적은 28.76평입니다.

HDC현대산업개발 자체사업인 만큼 내부 설계 및 상품에 공을 들였다. 세대 내 다양한 수납공간을 마련해 공간 효율성을 높였고, 전 세대에 입면 분할창을 적용해 내부 개방감을 극대화 시켰다.
전체 세대의 85% 이상을 차지하고 있는 전용 59㎡ 타입은 침실 2개, 욕실 1개 구성에 아파트 형태의 구조로 소형 아파트를 대체할 수 있을 전망이다. 안방에 드레스룸과 파우더룸을 배치하고, 현관에는 부피가 큰 물품을 보관할 수 있는 현관창고를 제공한다. 특히, 안방 드레스룸은 유상옵션을 통해 의류관리기, 금고, 프리미엄 선반 시스템 등이 제공되는 통합드레스룸을 설치할 수 있다.

59㎡A 타입은 3-Bay 구조로 공급 면적은 28.24평입니다.

아이파크 브랜드만의 홈네트워크 통합 제어 시스템인 HDC IoT도 도입된다. 세대 내 설치되는 월패드를 통해 조명∙난방∙세대환기∙도어록 제어와 엘리베이터 호출이 가능하다.
이와 함께 전용 앱이 설치된 스마트폰 소지 시 공동현관 자동출입, 엘리베이터 자동호출, 주차된 차량의 위치 정보 인식 등이 가능한 스마트폰 원패스 시스템까지 적용된다.

31㎡타입은 1~2인 가구에 적합한 구조로 공급 면적은 15.74평입니다.

'울산 태화강 아이파크'는 수익형 상품으로서의 투자가치도 높게 평가되고 있다.
주변으로 다수의 공공기관이 입주한 우정혁신도시가 위치해 있는데다 현대자동차 울산공장, 미포국가산업단지, 효문공업단지, 울산자유무역지역, 울산석유화학단지 등의 산업단지로도 출퇴근이 용이해 임대수요 확보가 용이할 전망이다.


주변으로 개발호재도 풍부하다. 단지가 들어서는 울산시 중구 내에는 9개소의 재건축, 재개발 등 정비사업이 진행되고 있어 정주개선이 기대된다. 또한, 단지 인근으로 송정역과 야음사거리를 잇는 울산 트램노선이 추진되고 있고 향후 사업지 인근으로 노선4, 트램 역세권까지 형성될 예정이어서 교통 여건이 더욱 좋아질 전망이다.





한편, 울산광역시 중구 성남동 일대에 들어서는 '울산 태화강 아이파크'는 오피스텔로 주택담보대출(LTV)이 70%까지 가능하며, 계약금 2회 분할 납부에 중도금 무이자 조건으로 수요자들의 자금 부담이 적다.
LTV 계산기 : 주택담보대출 투기과열지구 조정지역
LTV 계산기 : 주택담보대출 투기과열지구 조정지역 LTV 계산기 : 주택담보대출 투기과열지구 조정지역 집값의 60% 넘게 빌린 주택담보대출이 은행권에서만 150조원 안팎으로 파악됐다. 이 같은 대��
land.453010star.co.kr
내년부터 분양권도 주택 : 분양권+1주택 : 양도세율 16~52%

견본주택은 울산광역시 중구 성남동 일대에서 운영 중이며, 입주 예정일은 2024년 1월이다.
'부동산 아파트 분양' 카테고리의 다른 글
| 임대차3법 소급적용 시행시기 (0) | 2020.07.29 |
|---|---|
| 이사전 이사 준비 체크리스트 총정리! (0) | 2020.07.29 |
| 인터넷 등기부등본 발급 열람 방법 (0) | 2020.07.27 |
| e편한세상김포어반베뉴 특별공급 평형 세대수 청약통장 (0) | 2020.07.25 |
| 신용등급 무료조회 : 전국민 무료 방법 (0) | 2020.07.24 |
