관악 더 밀리안 아파트 조합원
누가 하고 싶을까?

관악 더 밀리안 아파트 조합원
지역주택조합 알아보기
신림지역주택조합(가칭)은 서울
관악구 신림동 1480-1번지 일대에서
‘관악 더 밀리안’ 아파트의
조합원을 8월부터 모집할
예정입니다.
보다 자세한 정보는 아래에서 확인하세요.
관악 더 밀리안 개요
관악 더 밀리안은 총 790가구로 계획
1∼3인 가구가 급격히 늘어나고 있는
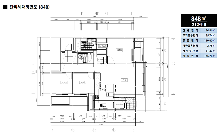
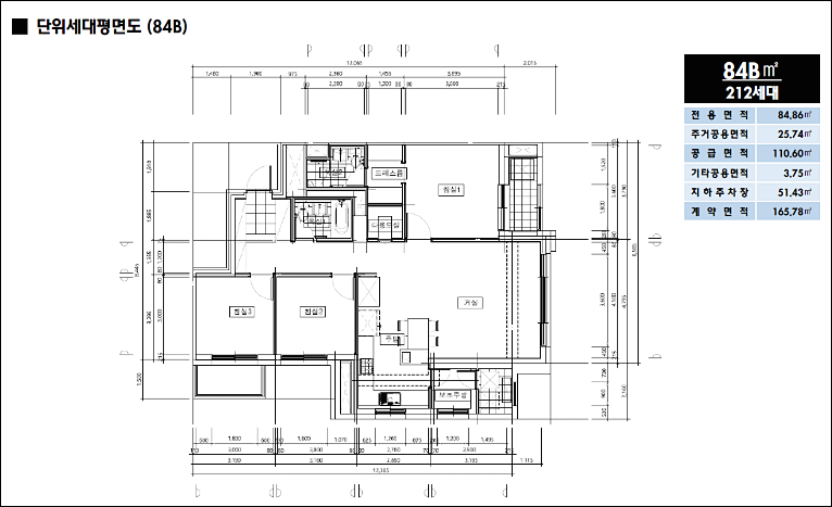
지역 특성을 반영해 △59㎡ 528가구
△84㎡ 262가구 등
전 타입 중소형으로 구성

주택법 시행령 개정안 추진 등으로
사업 안정성과 투명성이 강화된
지역주택 아파트라고 합니다.

최근 집값이 천정부지로 치솟고 있는
상황에서 수도권 지역에서
내집마련 대안으로 떠오르고 있는
지역주택조합 아파트
왜??
상대적으로 주거 마련 부담이
덜하기 때문이다.


관악 더 밀리안 직주근접 단지
관악 더 밀리안은 서울 주요
업무지역 접근성이 우수한
직주근접 단지라는 강점이 있다.

강남과 여의도는 물론, 구로디지털단지와
가산디지털단지 등지로
출퇴근하기 편리하다.
요즘 핫한 다른 지역 분양단지
따끈한 단지는 아래에 있습니다.
관악 더 밀리안 교통 편의성
시흥IC가 인근에 위치해 있고,
남부순환로를 통해 가산동과
서울대입구, 양재, 대치, 잠실
등으로의 이동이 수월하다.

관악 더 밀리안 교통환경
신림∼봉천터널이 완공되면
서울 동서축 교통여건이 개선
혼잡 시간대의 교통량이 분산
강남 및 주요 업무지역 접근성이
더욱 향상될 전망이다.

단지 앞 난곡로변에 버스정류장 위치
지하철 2호선 신대방역도 도보거리
영등포·여의도 등까지 환승 없이
신안산선 (2024년 완공예정)도 지근거리에
들어선다. 관악 더 밀리안에
대해서 궁금하신 분들은
아래를 참고하세요.
단지에서 약 150m 거리에 경전철
난곡선 난곡사거리역(가칭)이
예정돼 있다.
관악 더 밀리안 교육 인프라
관악 더 밀리안은 교육환경도 빼어나다.
도보 5분 거리에 미성초·
난곡중·신림고가 있다.

관악 더 밀리안 생활편의시설
생활편의시설인 롯데하이마트·
신림중앙시장이 도보거리
롯데백화점과 이마트·홈플러스·
현대아울렛 등도 차량
10분 거리 내에


미성동주민센터와 금천세무서,
보라매병원 등
관공서와 병원도 가깝다.
관악 더 밀리안 모델하우스 홍보관
홍보관은 서초구 방배동 851-3
마련될 예정이다.
"관악 더 밀리안’ 은 1~3인 가구가
선호하는 중소형 위주로 구성
직주근접 아파트로,
실주거여건도 뛰어나다”

“최근 전세값 폭등과 공급난이
겹쳐 수도권 주거비용 부담이 커졌다."

"서울 내집마련을 준비중인
실수요자들이 조합원에
관심을 가질까?"
지금까지 관악 더 밀리안
아파트 조합원 되볼까? :
지역주택조합에 대한 정보였습니다.

청약 방법과 계약금 중도금 잔금
대출 등은 아래글에서 확인하세요.
구체적으로 업데이트되는 정보는
아래에서 확인하세요.
관악 더 밀리안 홈페이지
'부동산 아파트 분양' 카테고리의 다른 글
| 힐스테이트 천호역 젠트리스 아파트 오피스텔 모델하우스 [서울 분양] (0) | 2020.08.01 |
|---|---|
| 전월세 계산기 사이트 (0) | 2020.07.31 |
| 브라운스톤 부평 분양가 평면도 모델하우스 계약금 중도금 잔금 (0) | 2020.07.31 |
| 신용등급 올리는 방법 꿀팁 총정리! (0) | 2020.07.30 |
| ‘영통 아이파크 캐슬 3단지’ 30일 1순위 청약 방법 (0) | 2020.07.30 |
